O Grupo Intellectus é uma instituição angolana de referência dedicada ao desenvolvimento do capital humano através do ensino e da formação profissional. Com uma visão focada na inovação e na qualidade académica, gerimos unidades de prestígio como a Universidade Gregório Semedo e o Colégio Gregório Semedo.
A nossa missão é preparar os líderes de amanhã, oferecendo soluções integradas que vão desde o ensino escolar e superior até à capacitação técnica e consultoria empresarial. Com uma forte presença em Luanda e parcerias internacionais (como a AmCham Angola), reafirmamos diariamente o nosso compromisso com o progresso social e económico de Angola.
Situado estrategicamente no coração do Nova Vida, o condomínio VIDA NOVA, com um conceito premium, está a ser erguido numa área total de 9.602,44 m², no município do Kilamba Kiaxi, comuna do Nova Vida, Rua 35, junto ao Shopping Atrium Nova Vida. Este condomínio, com vivendas personalizadas, oferece qualidade, eficiência na locomoção e valorização garantida.
Condomínio Vida Nova
Localizado na Urbanização Nova Vida, em frente ao ATRIUM, este empreendimento será erguido numa área generosa de 9.602,44 m², pensado para proporcionar o melhor da vida em família.
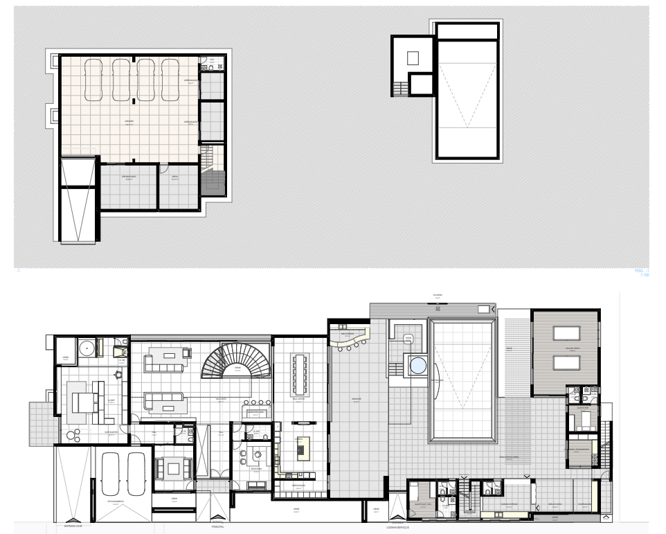
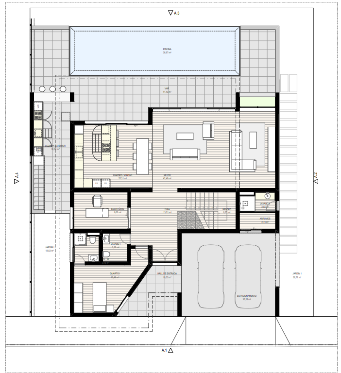
Para quem valoriza estilo, privacidade e bem-estar, neste condomínio estão a ser construídas 8 vivendas exclusivas, com um design singular, arquitectura moderna e acabamento de alto padrão.
A disposição interna dos compartimentos foi desenhada de forma funcional e inteligente, oferecendo mais conforto e praticidade no dia a dia. O espaço foi planeado com zona verde, áreas de lazer, passeios e vias amplas, garantindo mobilidade confortável para carros e peões.
Vivendas
Apresentamos as unidades com informações que facilitarão a escolha do imóvel que melhor se adequa às suas necessidades e expectativas.
O que oferecemos
Segurança
Ambiente protegido com sistemas de segurança modernos, garantindo tranquilidade para si e para a sua família.
Localização privilegiada
Situado numa zona privilegiada, com fácil acesso aos principais serviços, vias e pontos estratégicos.
Conforto
Espaços pensados para o bem-estar, com infra-estruturas modernas e um ambiente acolhedor para viver melhor.
Confiabilidade
A confiabilidade deste condomínio reflecte-se na solidez do projecto, no cumprimento rigoroso das normas de construção e na transparência em cada etapa do processo. Cada detalhe foi pensado para garantir segurança, durabilidade e tranquilidade, oferecendo aos moradores a certeza de um investimento seguro.
Parceiros
Fale connosco
A confiabilidade deste condomínio reflecte-se na solidez do projecto, no cumprimento rigoroso das normas de construção e na transparência em cada etapa do processo. Cada detalhe foi pensado para garantir segurança, durabilidade e tranquilidade, oferecendo aos moradores a certeza de um investimento seguro.
Copyright 2026 © Todos Direitos reservados por OkayulaTech